|
  |
|
(¸Å¹° ÁøÇàÁß) |
 |
»ó°¡ | ½ÅÃà»ó°¡ ÀÓ´ë |
 |
💖»óµ¿µðŬ»ó°¡2ÃþÀÓ´ë 
|
|
¿ù¼¼ |
75¸¸¿ø |
º¸Áõ±Ý |
1000¸¸¿ø |
±Ç¸®±Ý |
0¸¸¿ø |
»óÈ£¸í |
À¯ÀϰøÀÎÁß°³»ç |
ÀüȹøÈ£ |
055-635-8954 |
À̸§ |
³²¼öÁø  |
ÈÞ´ëÆù |
010-8954-1042 |
¼ÒÀçÁö |
°æ»ó³²µµ °ÅÁ¦½Ã »óµ¿5±æ 56 (»óµ¿µ¿) , 303µ¿ C108È£ (°ÅÁ¦´õ¼¥µðŬ¸®ºê) |
µî·Ï¹øÈ£ |
48310-2018-00004 |
 |
 |
 |
¸Å¹°¿¡ ´ëÇÑ ¿øÇϽô Á¤º¸¸¦ Ŭ¸¯Çϼ¼¿ä. |
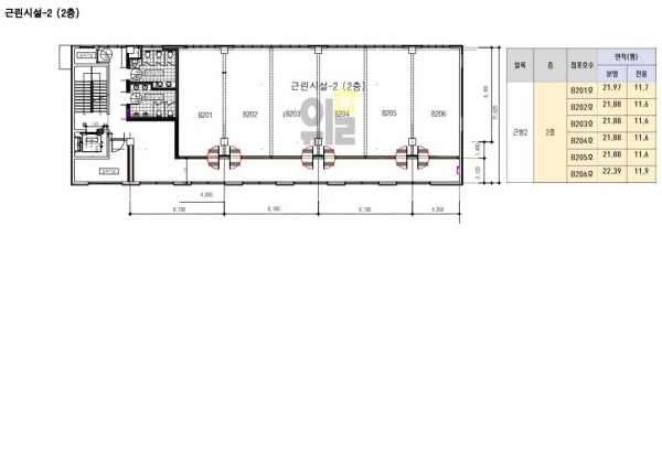
¡Ú»óµ¿µ¿ °ÅÁ¦µðŬ¸®ºê »ó°¡ 2Ãþ ÀÓ´ë¡Ú
21.88m2(11.6ÆòÇü) º¸Áõ±Ý1õ/75¸¸¿ø(ÀýÃæ°¡´É)
¿ë»êÃʵîÇб³¾Õ 2Ãþ. ±³½À¼Ò.»ç¹«½Ç Ãßõ
¡Ú°ÅÁ¦µµ »ó°¡ Àü¹® ºÎµ¿»ê¡Ú
¢ºÀ¯ÀϰøÀÎ ¼ÒÀå ³²¼öÁøÀÔ´Ï´Ù.
³»»ó°¡¸¦ ±¸ÇÏ´Â ¸¶À½°¡ÁüÀ¸·Î ÃÖ¼±,½Å¼Ó, Ã¥ÀÓÀÖ´Â Áß°³¸¦
Çϵµ·Ï ÃÖ¼±À» ´ÙÇϰڽÀ´Ï´Ù.
¢ºÁß°³¾÷µî·Ï¹øÈ£: 48310-2018-00004
¢ºÁÖ¼Ò: °æ³² °ÅÁ¦½Ã »óµ¿5±æ56, °ÅÁ¦µðŬ¸®ºê»ó°¡ 303µ¿ C108È£
¢ºÄ«Ä«¿ÀÅå ID : skatnwls27
¡Ú°ÅÁ¦³²¼ÒÀå ºí·¯±× ¹Ù·Î°¡±â : https://blog.naver.com/skatnwls27
¡Ú¿À½Ã´Â±æ ¾È³» : °ÅÁ¦µðŬ¸®ºê»ó°¡ 303µ¿ C108È£
¢ºÀϹÝÀ½½ÄÁ¡ , ÈÞ°ÔÀ½½ÄÁ¡ , º´¿ø , Çпø
»ç¹«½Ç , PC ¹æ , µ¶¼½Ç .¿îµ¿½Ã¼³ µî ´ëÇü»ó°¡,¼ÒÇü»ó°¡
¸ðµç ¾÷Á¾ »ó°¡ÄÁ¼³ÆÃ °¡´É
¢ºÁ¤Á÷Çϰí Ã¥ÀÓÀÖ´Â 24½Ã°£ Áß°³¼ºñ½º
¢º°ÅÁ¦³²¼ÒÀåÀÌ µµ¿Íµå¸®°Ú½À´Ï´Ù.
635-8954, 010-8954-1042

|
|
| 💖»óµ¿µðŬ»ó°¡2ÃþÀÓ´ë |
|
¿ù¼¼75¸¸¿ø º¸Áõ±Ý1000¸¸¿ø
¸éÀû : 21.88§³
|
|
|
|